Дата
Автор
Скрыт
Источник
Сохранённая копия
Original Material

Дочь Сечина захватила курортную зону Геленджика

Наследница главы «Роснефти» сомнительным путем получила 1,8 гектара у моря под личную застройку. Об этом пишет PASMI.RU.

Журналисты выявили схему несложных манипуляций, с помощью которой дочь главы «Роснефти» Игоря Сечина Инга Каримова не только приобрела в аренду один из лакомых участков на побережье Черного моря в центре Геленджика, но и получила возможность построить дачу там, где должны быть туристические объекты.

Шаг первый — фирма с арендой

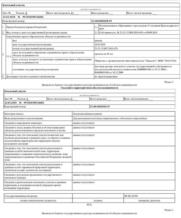
Дочь главы «Роснефти» Игоря Сечина Инга Каримова в марте 2018 года приобрела у президента «Союза тхэквондо России» Анатолия Терехова ничем, казалось бы непримечательное ООО «Камелот». Микрофирма с двумя сотрудниками и уставным капиталом в 9 млн рублей зарегистрирована в Санкт-Петербурге, основной вид деятельности — оптовая торговля.

Но, как выяснил телеграм-канал «Жаба и гадюка», к покупке данной компании Каримову побудили не только и не столько перспективы оптовой торговли. Дело в том, что в 2010 году ООО «Камелот» (ИНН — тот же, что и у приобретенной дочерью Сечина фирмы) взяло в аренду сроком на 49 лет у администрации Геленджика 1,8 га земли. Участок неплохой — находится в самом центре курортного города, практически у моря. Кадастровая стоимость надела — 251 млн рублей.

Правда у весьма лакомого куска земли имелся существенный недостаток: по условиям договора об аренде он предназначался исключительно для размещения комплекса апартаментов с объектами соцкультбыта, то есть, строить на нем нечто, не касающееся массового туризма и отдыха, категорически запрещено.

Шаг второй — было ваше, стало наше

После обнародования информации о том, что дочь Игоря Сечина получила в аренду участок на набережной в Геленджике, в СМИ появились предположения, что она намерена стать одним из крупных девелоперов Кубани. Но впоследствии выяснилось — никаких туристических объектов Каримова строить не собирается, ей, судя по всему, просто захотелось иметь дачу у моря.

По данным телеграм-канала «Другой Ролдугин», обойти ограничения, наложенные на земельный участок для дочери главы «Роснефти» оказалось несложно — сомнительная операция была провернута за две месяца. 10 мая 2018 года Инга Игоревна вывела землю из аренды принадлежащей ей компании в свою личную.

Шаг третий — дача вместо отеля

А 20 августа 2018 года участок был переведен в категорию земель, предназначенных для индивидуального жилищного строительства.

«Почти 2 га в считанных метрах от пляжа! Это будет самая большая частная дача курорта, расположенная в центре города прямо у моря», — пишет телеграм-канал.

Каким образом удалось изменить предназначение земель, вероятно, останется тайной, но авторы расследования предполагают, что дело не обошлось без вмешательства влиятельного папы Инги. Правда, по данным телеканала, прецедент постройки дачи на не предназначенных изначально для этого землях в Геленджике уже был: в сотне метров от теперешних владений Инги Каримовой на месте бывшего отеля возвел свою резиденцию совладелец банка «Россия» Николай Шамалов.

Источник